
-
產品介紹
Product description
產品名稱:自動扶梯
產品型號:WE05
速度:4.5
載重量:
其他說明:
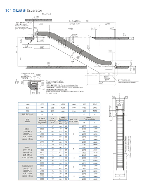
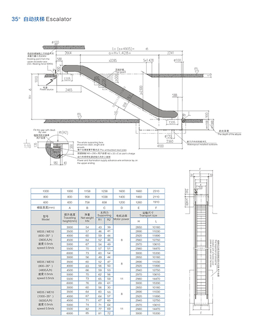
韋伯電梯有限公司電梯有限公司系列自動扶梯產品,依據現行歐洲標準和中國標準,應用新型材料及先進技術進行設計、制造,結合具有日本的設計風格,保證產品的高品質及優雅的舒適性。有兩種角度可供用戶選擇,35度的扶梯為您節省占地空間,30度的扶梯為你提供更佳的運行舒適感。適用于商場、超市、地鐵、機場等客流量大的場所,為您的建筑平添一道亮麗的流動風影。

自動扶梯型號 提升高度
(m)
傾斜角度
(度)
梯級寬度
(mm)
速度
(m/s)
WE05 4.5 35 600 0.5 4.5 35 800 0.5 4.5 35 1000 0.5 4.5 30 600 0.5 4.5 30 800 0.5 4.5 30 1000 0.5



